- 賃貸HOME>
- 広島市南区仁保1丁目の賃貸 アパート・コーポ詳細
| 物件所在地 | 家賃 | 敷 金 礼 金 |
共益費 | 駐車場 | 間取り | |
|---|---|---|---|---|---|---|
| 広島市南区仁保1丁目 | 66,000円 | 2ヶ月 2ヶ月 |
2000円 | 1台込み 0円/月 |
1R |
こちらの物件はご契約となりましたのでお問合せいただけません。
駐車場1台無料・充実設備★閑静な住宅地!!
| 物件種別 | 賃貸アパート・コーポ | 物件番号 | No. 3237 |
|---|---|---|---|
| 駐車場 | 1台込み0円/月 | 間取り(広さ) | 1R (m²) |
| 物件所在地 | 広島市南区仁保1丁目 | 学区 | |
| 敷 金/礼 金 | 敷金:2ヶ月(132000円) 礼金:2ヶ月(66000円) |
沿線/駅(分) | 電車: 徒歩分 バス:広電バス 仁保1丁目バス停 徒歩 1分 |
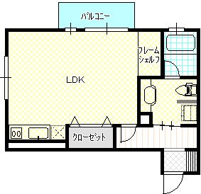
| 間取り詳細 | LDK13 | 構造 | 軽量鉄骨造 |
| 共益費/管理費 | 2000円 | ||
| 設備 | バス・トイレ別、シャワー、システムキッチン、給湯、床下収納、BSアンテナ、バルコニー、フローリング、駐輪場、バイク置き場、ウォシュレット、角部屋、冷暖房、浴室乾燥機、駐車場 | ||
| 備考 | 2面射光 日当り良好 下駄箱 24時間電話対応 2口システムキッチン クローゼット プロパン カードキー 取引態様:仲介 |
||
こちらの物件はご契約となりましたのでお問合せいただけません。





























