- ’À‘ÝHOME>
- L“‡Žs’†‹æ¼ìŒû’¬‚Ì’À‘Ý ƒAƒp[ƒgEƒR[ƒ|Ú×
| •¨ŒŠÝ’n | ‰Æ’À | •~ ‹à —ç ‹à |
‹¤‰v”ï | ’“ŽÔê | ŠÔŽæ‚è | |
|---|---|---|---|---|---|---|
| L“‡Žs’†‹æ¼ìŒû’¬ | 89,000‰~ | 3ƒ–ŒŽ 1ƒ–ŒŽ |
2000‰~ | 1‘äž‚Ý 0‰~/ŒŽ |
3DK |
‚±‚Ì•¨Œ‚Í“ü‹‚ªŒˆ‚Ü‚è‚Ü‚µ‚½B—L‚è“‚²‚´‚¢‚Ü‚·B
ƒX[ƒp[A‹âsAƒRƒ“ƒrƒj‹ß!!‚‚È‚ñ‚Å‚à‚»‚ë‚Á‚½D—§’n‚È’z󕨌‚Å‚·‚å™
| •¨ŒŽí•Ê | ’À‘݃Aƒp[ƒgEƒR[ƒ| | •¨Œ”Ô† | No. 1363 |
|---|---|---|---|
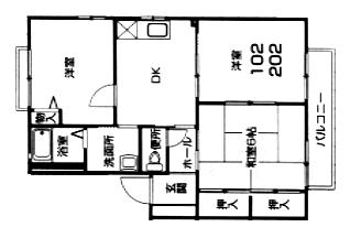
| ’“ŽÔê | 1‘äž‚Ý0‰~/ŒŽ | ŠÔŽæ‚è(L‚³) | 3DK (53.16m²) |
| •¨ŒŠÝ’n | L“‡Žs’†‹æ¼ìŒû’¬ | Šw‹æ | ]”g’†ŠwZ M“ü¬ŠwZ |
| •~ ‹à/—ç ‹à | •~‹àF3ƒ–ŒŽ(267000‰~) —ç‹àF1ƒ–ŒŽ(89000‰~) |
‰ˆü/‰w(•ª) | “dŽÔF L“‡“d“SM“üìŒû’¬“d’â“k•à3•ª ƒoƒXF “k•à •ª |
| ŠÔŽæ‚èÚ× | 7D5—m/6—m/6˜a/7D5DK | \‘¢ | Œy—Ê“Sœ‘¢ |
| ‹¤‰v”ï/ŠÇ—”ï | 2000‰~ | ||
| Ý”õ | ƒoƒXEƒgƒCƒŒ•ÊAƒVƒƒƒ[A‹‹“’ABSƒAƒ“ƒeƒiAo‘‹Aƒoƒ‹ƒRƒj[A’“—ÖêAƒoƒCƒN’u‚«êAŠp•”‰®A’“ŽÔê | ||
| ”õl | Žû”[ ‰º‘Ê” ƒJ[ƒhƒL[ Žº“àô‘ó‹@’uê ’EˆßŠ ô–Ê‘ä “ìŒü‚«ƒoƒ‹ƒRƒj[ ƒLƒbƒ`ƒ“‘‹•t‚« 2–ÊŽËŒõ “ú“–‚½‚è—ÇD Žæˆø‘Ô—lF’‡‰î |
||
‚±‚Ì•¨Œ‚Í“ü‹‚ªŒˆ‚Ü‚è‚Ü‚µ‚½B—L‚è“‚²‚´‚¢‚Ü‚·B













![‚²Šó–]‚Ì‚¨•”‰®‚¨’m‚点ƒT[ƒrƒX](../../../inc/images/common/s_navi03_out.jpg)
![‚²Šó–]‚ÌŽ––±ŠE“X•ÜE‘qŒÉ ‚¨’m‚点ƒT[ƒrƒX](../../../inc/images/common/s_navi04_out.jpg)














